1080 Wien, Blindengasse 39 – Sanierung von 26 Wohnungen

1080 Wien, Blindengasse 39 – Sanierung von 26 Wohnungen
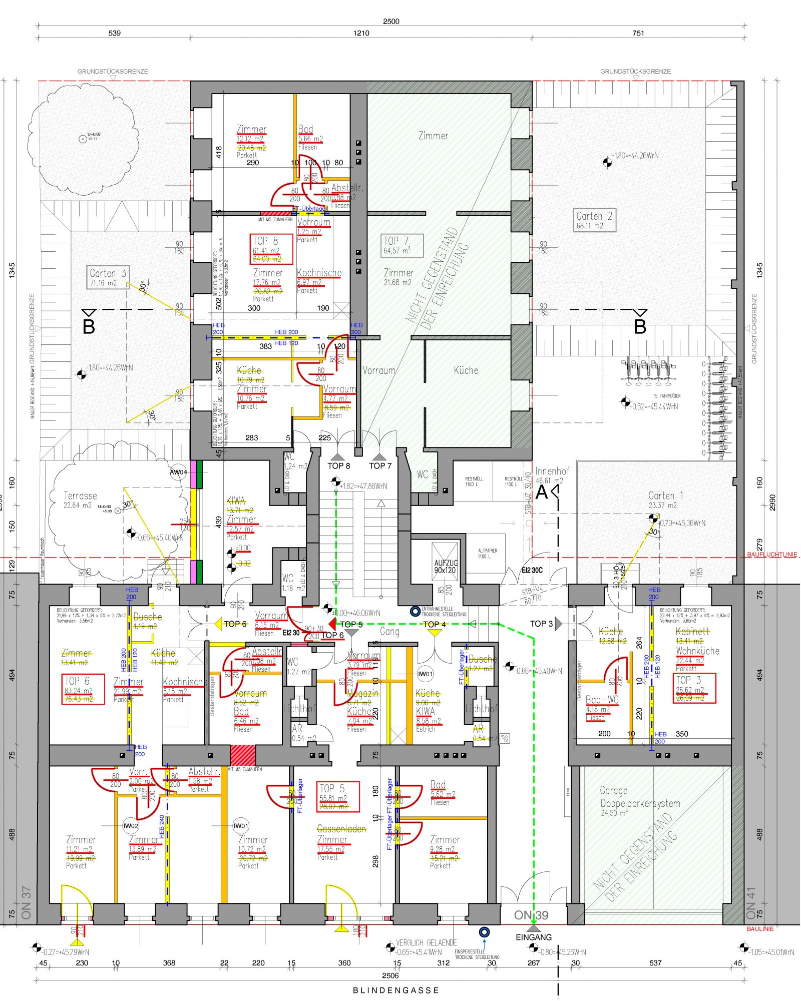
SANIERUNG VON 26 WOHNEINHEITEN WÄHREND DER BENÜTZUNG DURCH ANDERE MIETER

in 1080 Wien, Blindengasse 39 erfolgt die Sanierung von 26 Wohnungen in den Regelgeschossen mit Zubauten seitlich am Stiegenhaus sowie Balkonzubauten, Erneuerungen der Steigleitungen und Geländeanpassungen. Zudem werden französische Fenster mit VSG-Brüstungen hergestellt.

Das Haus besteht aus einem Straßentrakt an dem im Hof durch ein Stiegenhaus ein zusätzlicher Trakt angebaut ist. Das Haus hat einen Keller, das Erdgeschoß, vier Regelgeschoße sowie einen Rohdachboden.

Alle Wohnungen werden durch den Eingang im Straßenhaus und dem Stiegenhaus erschlossen.

Unsere Leistungen: Planungs- und Baustellenkoordination

Kommentare

Noch keine Kommentare.

Jetzt kommentieren